20 000 000 ₽
119 048 ₽ за м²
Аэропорт (старая платф.), Киевское направление ~10 мин
Дачная, Киевское направление ~10 мин
Жаворонки, Белорусское направление ~10 мин
Описание
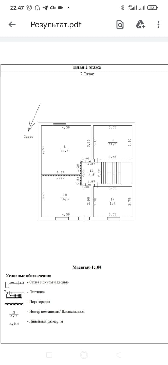
Площадь
168 м²
Кухня
Жилая площадь
Балкон
нет
Этажей
2
Комнаты
Расположение
О доме
Общая площадь
168 м²
Материал дома
Газоблок
Количество этажей
2
Год постройки
2018
Об участке
Площадь
6 м²
Статус участка
Поселений (ИЖС)
Коммуникации и удобства
Газ
Нет
Водопровод
Есть
Канализация
Есть
Электричество
Есть
ПМЖ
Есть
Охрана
Нет
Отопление
Электрическое
Изменение цены
0 ₽ (0.00%)
Цена за этот дом










